Gambar Kerja Jembatan Beton Bertulang – IMAGESEE

Gambar File Rab Gambar Jembatan Lengkap Gbr Cad Penyeberangan di

Aplikasi Rab Otomatis: 15. RAB JEMBATAN BETON 6m x 4m

Detail Infrastruktur Perdesaan: Desain Dan Rab Jembatan Kayu Lantai Beton

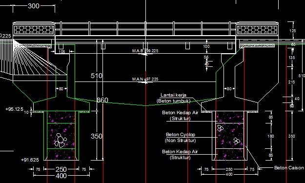
Gambar Kerja Jembatan Beton Bertulang – IMAGESEE
Sebuah jembatan beton bertulang dirancang dengan menggunakan teknologi terkini yang memastikan kekuatan dan kestabilan struktur. Gambar kerja ini menampilkan rancangan jembatan beton bertulang yang memiliki panjang tertentu. Teknologi 3D digunakan untuk merancang jembatan ini, sehingga memungkinkan para insinyur untuk memvisualisasikan bentuk, ukuran, dan kekuatan jembatan sebelum pembangunan fisik dimulai.
Apa itu Gambar Kerja Jembatan Beton Bertulang – IMAGESEE?
Ini adalah gambar kerja jembatan beton bertulang yang dirancang oleh IMAGESEE. Gambar kerja ini berfungsi sebagai panduan bagi kontraktor dan pekerja konstruksi dalam membangun jembatan beton bertulang tersebut. Dalam gambar ini, terdapat detail-detail seperti spesifikasi material, dimensi, struktur, dan posisi pemasangan.
Mengapa Gambar Kerja Jembatan Beton Bertulang – IMAGESEE Penting?
Gambar kerja jembatan beton bertulang ini sangat penting karena menjadi acuan utama dalam pembangunan jembatan tersebut. Dengan menggunakan gambar kerja ini, para kontraktor dan pekerja konstruksi dapat memahami dengan jelas bagaimana cara membangun jembatan beton bertulang tersebut. Gambar kerja ini juga membantu dalam menghitung estimasi biaya dan waktu yang diperlukan untuk pembangunan jembatan.
Kelebihan Gambar Kerja Jembatan Beton Bertulang – IMAGESEE
Kelebihan gambar kerja jembatan beton bertulang ini adalah:
- Menyediakan detail yang lengkap dan terperinci mengenai jembatan beton bertulang, termasuk spesifikasi material, dimensi, dan struktur.
- Memudahkan dalam perhitungan estimasi biaya dan waktu yang diperlukan untuk pembangunan jembatan.
- Memastikan kualitas dan keamanan jembatan beton bertulang yang akan dibangun.
- Memungkinkan para kontraktor dan pekerja konstruksi untuk memahami dengan jelas bagaimana cara membangun jembatan beton bertulang tersebut.
- Memberikan gambaran yang akurat tentang bentuk, ukuran, dan kekuatan jembatan sebelum pembangunan fisik dimulai.
Kekurangan Gambar Kerja Jembatan Beton Bertulang – IMAGESEE
Ada beberapa kekurangan yang perlu diperhatikan terkait dengan gambar kerja jembatan beton bertulang ini:
- Membutuhkan pemahaman yang cukup tentang gambar teknik untuk dapat memahami dan menginterpretasikan gambar kerja dengan benar.
- Terbatasnya informasi yang didapatkan dari gambar kerja, sehingga perlu dilakukan komunikasi yang efektif antara para kontraktor, pekerja konstruksi, dan desainer jembatan.
- Tidak dapat mencakup semua detail konstruksi, sehingga perlu perencanaan yang matang sebelum memulai pembangunan jembatan.
Cara Menggunakan Gambar Kerja Jembatan Beton Bertulang – IMAGESEE
Untuk menggunakan gambar kerja jembatan beton bertulang ini, langkah-langkah berikut dapat diikuti:
- Perhatikan detail-detail yang tertera pada gambar, termasuk spesifikasi material, dimensi, dan struktur.
- Gunakan gambar kerja sebagai panduan dalam pemilihan material yang sesuai, termasuk beton bertulang.
- Ikuti petunjuk-petunjuk yang tertera mengenai cara pemasangan dan perakitan struktur jembatan.
- Pastikan untuk mengikuti aturan keselamatan yang berlaku selama pembangunan jembatan.
- Lakukan inspeksi berkala untuk memastikan bahwa pembangunan jembatan berjalan sesuai dengan gambar kerja yang telah dirancang.
Kesimpulan
Gambar kerja jembatan beton bertulang merupakan panduan utama dalam pembangunan jembatan tersebut. Gambar kerja ini memberikan detail-detail tentang spesifikasi material, dimensi, struktur, dan posisi pemasangan. Dengan menggunakan gambar kerja ini, para kontraktor dan pekerja konstruksi dapat memahami dengan jelas bagaimana cara membangun jembatan beton bertulang tersebut. Meskipun memiliki kekurangan seperti membutuhkan pemahaman yang cukup tentang gambar teknik, gambar kerja jembatan beton bertulang ini tetap menjadi acuan yang penting dalam memastikan kualitas dan keamanan jembatan yang akan dibangun.
Gambar File Rab Gambar Jembatan Lengkap Gbr Cad Penyeberangan di

Aplikasi Rab Otomatis: 15. RAB JEMBATAN BETON 6m x 4m

Detail Infrastruktur Perdesaan: Desain Dan Rab Jembatan Kayu Lantai Beton

Gambar File Rab Gambar Jembatan Lengkap Gbr Cad Penyeberangan di
Gambar file RAB (Rencana Anggaran Biaya) ini berisi gambar lengkap jembatan dengan menggunakan gambar CAD (Computer-Aided Design). Dalam gambar tersebut, terdapat detail-detail seperti dimensi, struktur, dan posisi pemasangan, sehingga memudahkan para kontraktor dan pekerja konstruksi dalam membangun jembatan tersebut.
Apa itu Gambar File Rab Gambar Jembatan Lengkap Gbr Cad Penyeberangan di?
Ini adalah gambar file RAB (Rencana Anggaran Biaya) yang berisi gambar lengkap jembatan dengan menggunakan gambar CAD (Computer-Aided Design). Gambar ini digunakan sebagai panduan dalam pembangunan jembatan dan mencakup detail-detail seperti dimensi, struktur, dan posisi pemasangan. Hal ini memudahkan para kontraktor dan pekerja konstruksi dalam memahami bagaimana cara membangun jembatan tersebut.
Mengapa Gambar File Rab Gambar Jembatan Lengkap Gbr Cad Penyeberangan di Penting?
Gambar file RAB jembatan lengkap dengan gambar CAD sangat penting dalam pembangunan jembatan karena memberikan detail yang lengkap dan jelas mengenai jembatan tersebut. Dengan menggunakan gambar ini, para kontraktor dan pekerja konstruksi dapat memahami dengan baik bagaimana cara membangun jembatan tersebut. Selain itu, gambar ini juga membantu dalam perhitungan estimasi biaya dan waktu yang diperlukan untuk pembangunan jembatan.
Kelebihan Gambar File Rab Gambar Jembatan Lengkap Gbr Cad Penyeberangan di
Kelebihan gambar file RAB jembatan lengkap dengan gambar CAD adalah:
- Memberikan detail yang lengkap dan terperinci mengenai jembatan, termasuk dimensi, struktur, dan posisi pemasangan.
- Memudahkan dalam perhitungan estimasi biaya dan waktu yang diperlukan untuk pembangunan jembatan.
- Membantu para kontraktor dan pekerja konstruksi dalam memahami dengan jelas bagaimana cara membangun jembatan tersebut.
- Menjamin kualitas dan keamanan jembatan yang akan dibangun.
- Membantu dalam melakukan perubahan dan modifikasi desain jembatan secara cepat dan akurat.
Kekurangan Gambar File Rab Gambar Jembatan Lengkap Gbr Cad Penyeberangan di
Ada beberapa kekurangan yang perlu diperhatikan terkait dengan gambar file RAB jembatan lengkap dengan gambar CAD ini:
- Membutuhkan pemahaman yang cukup tentang gambar teknik dan perangkat lunak CAD untuk dapat memahami dan menginterpretasikan gambar dengan benar.
- Dibutuhkan peralatan dan perangkat lunak CAD yang memadai untuk dapat membuka dan melihat gambar tersebut.
- Terbatasnya informasi yang didapatkan dari gambar, sehingga perlu dilakukan komunikasi yang efektif antara para kontraktor, pekerja konstruksi, dan desainer jembatan.
Cara Menggunakan Gambar File Rab Gambar Jembatan Lengkap Gbr Cad Penyeberangan di
Untuk menggunakan gambar file RAB jembatan lengkap dengan gambar CAD ini, langkah-langkah berikut dapat diikuti:
- Gunakan perangkat lunak CAD yang memadai untuk membuka dan melihat gambar tersebut.
- Perhatikan detail-detail yang tertera pada gambar, termasuk dimensi, struktur, dan posisi pemasangan.
- Gunakan gambar sebagai panduan dalam pemilihan material yang sesuai untuk pembangunan jembatan.
- Ikuti petunjuk-petunjuk yang tertera mengenai cara pemasangan dan perakitan struktur jembatan.
- Pastikan untuk mengikuti aturan keselamatan yang berlaku selama pembangunan jembatan.
Kesimpulan
Gambar file RAB jembatan lengkap dengan gambar CAD memberikan detail yang lengkap dan jelas mengenai jembatan tersebut. Dengan menggunakan gambar ini, para kontraktor dan pekerja konstruksi dapat memahami dengan baik bagaimana cara membangun jembatan tersebut. Meskipun memiliki kekurangan seperti membutuhkan pemahaman yang cukup tentang gambar teknik dan perangkat lunak CAD, gambar file RAB jembatan lengkap dengan gambar CAD ini tetap menjadi acuan yang penting dalam memastikan kualitas dan keamanan jembatan yang akan dibangun.
Aplikasi Rab Otomatis: 15. RAB JEMBATAN BETON 6m x 4m

Detail Infrastruktur Perdesaan: Desain Dan Rab Jembatan Kayu Lantai Beton

