Desain Rumah 100 Meter 1 Lantai

Desain Rumah 100 Meter 1 Lantai

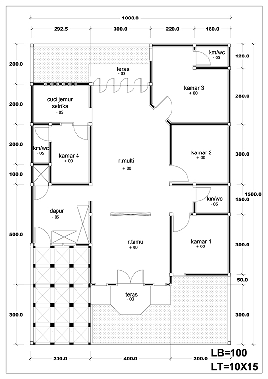
Menurut data yang ada, terdapat beberapa contoh desain rumah minimalis dengan luas tanah 100 meter persegi. Berikut adalah beberapa contohnya:

Desain Rumah Luas Tanah 100m2 1 Lantai

Desain Rumah Luas Tanah 100m2 1 Lantai

Apa Itu Desain Rumah Luas Tanah 100m2 1 Lantai?

Desain rumah luas tanah 100m2 1 lantai adalah suatu desain rumah yang dibangun dengan luas tanah 100 meter persegi dan hanya terdiri dari 1 lantai.

Mengapa Memilih Desain Rumah Luas Tanah 100m2 1 Lantai?

Pemilihan desain rumah luas tanah 100m2 1 lantai dapat menjadi pilihan yang tepat bagi mereka yang ingin membangun rumah dengan lahan yang luas terbatas. Selain itu, desain rumah 1 lantai juga dapat mempermudah bagi mereka yang ingin membangun rumah minimalis namun tetap memperhatikan keindahan dan kenyamanannya.

Kelebihan Desain Rumah Luas Tanah 100m2 1 Lantai

Beberapa kelebihan yang dimiliki oleh desain rumah luas tanah 100m2 1 lantai antara lain:

  • Tampak lebih moderne dan minimalis
  • Hemat biaya dalam penggunaan material bangunan
  • Memudahkan akses tidak hanya bagi penghuni namun juga bagi tamu yang datang

Kekurangan Desain Rumah Luas Tanah 100m2 1 Lantai

Beberapa kekurangan yang dimiliki oleh desain rumah luas tanah 100m2 1 lantai antara lain:

  • Luas ruangan yang terbatas
  • Tidak ada ruang yang bisa dimanfaatkan selain ruang tamu
  • Potensi kebisingan lebih tinggi karena tidak terdapat batas antara ruangan

Biaya Desain Rumah Luas Tanah 100m2 1 Lantai

Biaya pembangunan desain rumah luas tanah 100m2 1 lantai dapat bervariasi tergantung pada budget dan jenis material bangunan yang digunakan. Namun, secara umum biaya pembangunan desain rumah luas tanah 100m2 1 lantai dapat mencapai kisaran 300 juta hingga 500 juta rupiah.

Cara Membangun Desain Rumah Luas Tanah 100m2 1 Lantai

Beberapa langkah untuk membangun desain rumah luas tanah 100m2 1 lantai antara lain:

  1. Menentukan tema dan konsep desain rumah
  2. Membuat denah atau gambar rancangan rumah
  3. Melakukan persiapan lahan
  4. Melakukan pembangunan bangunan
  5. Penataan interior dan exterior

Contoh Desain Rumah Luas Tanah 100m2 1 Lantai

Berikut ini adalah contoh desain rumah luas tanah 100m2 1 lantai:

Contoh Desain Rumah Luas Tanah 100m2 1 Lantai

50 Kumpulan Desain Rumah Minimalis 8X6 Paling Populer di Dunia

50 Kumpulan Desain Rumah Minimalis 8X6 Paling Populer di Dunia

Apa Itu 50 Kumpulan Desain Rumah Minimalis 8X6 Paling Populer di Dunia?

50 Kumpulan Desain Rumah Minimalis 8X6 Paling Populer di Dunia adalah suatu kumpulan desain rumah minimalis dengan ukuran 8×6 meter yang populer di berbagai belahan dunia.

Mengapa Memilih 50 Kumpulan Desain Rumah Minimalis 8X6 Paling Populer di Dunia?

Pemilihan 50 Kumpulan Desain Rumah Minimalis 8X6 Paling Populer di Dunia dapat menjadi pilihan yang tepat bagi mereka yang memiliki lahan yang terbatas namun tetap ingin membangun rumah yang modern dan elegan.

Kelebihan 50 Kumpulan Desain Rumah Minimalis 8X6 Paling Populer di Dunia

Beberapa kelebihan yang dimiliki oleh 50 Kumpulan Desain Rumah Minimalis 8X6 Paling Populer di Dunia antara lain:

  • Tampil dengan desain modern dan elegan
  • Tidak memakan banyak lahan
  • Cocok untuk pasangan atau keluarga kecil

Kekurangan 50 Kumpulan Desain Rumah Minimalis 8X6 Paling Populer di Dunia

Beberapa kekurangan yang dimiliki oleh 50 Kumpulan Desain Rumah Minimalis 8X6 Paling Populer di Dunia antara lain:

  • Luas ruangan yang terbatas
  • Tidak dapat digunakan sebagai rumah untuk keluarga yang berjumlah besar
  • Keterbatasan ruang untuk berbagai kebutuhan dan fungsi

Biaya 50 Kumpulan Desain Rumah Minimalis 8X6 Paling Populer di Dunia

Biaya pembangunan 50 Kumpulan Desain Rumah Minimalis 8X6 Paling Populer di Dunia juga dapat bervariasi tergantungnya pada jenis material yang digunakan. Namun, secara umum biaya pembangunan dapat mencapai kisaran 50 juta hingga 150 juta rupiah.

Cara Membangun 50 Kumpulan Desain Rumah Minimalis 8X6 Paling Populer di Dunia

Beberapa langkah untuk membangun 50 Kumpulan Desain Rumah Minimalis 8X6 Paling Populer di Dunia antara lain:

  1. Membuat denah atau gambar rancangan rumah
  2. Melakukan persiapan lahan
  3. Melakukan pembangunan bangunan
  4. Penataan interior dan exterior

Contoh 50 Kumpulan Desain Rumah Minimalis 8X6 Paling Populer di Dunia

Berikut ini adalah beberapa contoh dari 50 Kumpulan Desain Rumah Minimalis 8X6 Paling Populer di Dunia:

Contoh 50 Kumpulan Desain Rumah Minimalis 8X6 Paling Populer di Dunia

27 Desain Rumah Type 1000

27 Desain Rumah Type 1000

Apa Itu 27 Desain Rumah Type 1000?

27 Desain Rumah Type 1000 adalah suatu kumpulan desain rumah minimalis dengan luas tanah 1000 meter persegi.

Mengapa Memilih 27 Desain Rumah Type 1000?

Pemilihan 27 Desain Rumah Type 1000 dapat menjadi pilihan yang tepat bagi keluarga yang ingin memiliki rumah yang luas dan nyaman. Selain itu, konsep desain yang minimalist bisa membuat hunian terlihat lebih elegan.

Kelebihan 27 Desain Rumah Type 1000

Beberapa kelebihan yang dimiliki oleh 27 Desain Rumah Type 1000 antara lain:

  • Cocok untuk keluarga besar atau yang memiliki hobi berkebun
  • Lebih banyak ruang yang dapat dimanfaatkan dengan baik
  • Memberikan kenyamanan dan privasi lebih bagi penghuninya

Kekurangan 27 Desain Rumah Type 1000

Beberapa kekurangan yang dimiliki oleh 27 Desain Rumah Type 1000 antara lain:

  • Biaya pembangunan yang lebih mahal
  • Memerlukan waktu pembangunan yang lebih lama
  • Tidak cocok bagi yang tidak menyukai kebisingan alam sekitar

Biaya 27 Desain Rumah Type 1000

Biaya pembangunan 27 Desain Rumah Type 1000 juga dapat bervariasi tergantungnya pada jenis material yang digunakan. Namun, biaya pembangunan dapat mencapai kisaran 1 miliar hingga 2 miliar rupiah.

Cara Membangun 27 Desain Rumah Type 1000

Beberapa langkah untuk membangun 27 Desain Rumah Type 1000 antara lain:

  1. Membuat denah atau gambar rancangan rumah
  2. Melakukan persiapan lahan
  3. Melakukan pembangunan bangunan dan area luar
  4. Penataan interior dan exterior
  5. Pembuatan taman yang cocok dengan konsep rumah

Contoh 27 Desain Rumah Type 1000

Berikut ini adalah beberapa contoh dari 27 Desain Rumah Type 1000:

Contoh 27 Desain Rumah Type 1000

Dari beberapa pilihan di atas, kita dapat memilih desain rumah minimalis yang paling tepat sesuai dengan kebutuhan dan budget yang kita miliki. Semoga informasi ini bermanfaat untuk membatu menciptakan hunian yang nyaman dan indah.